
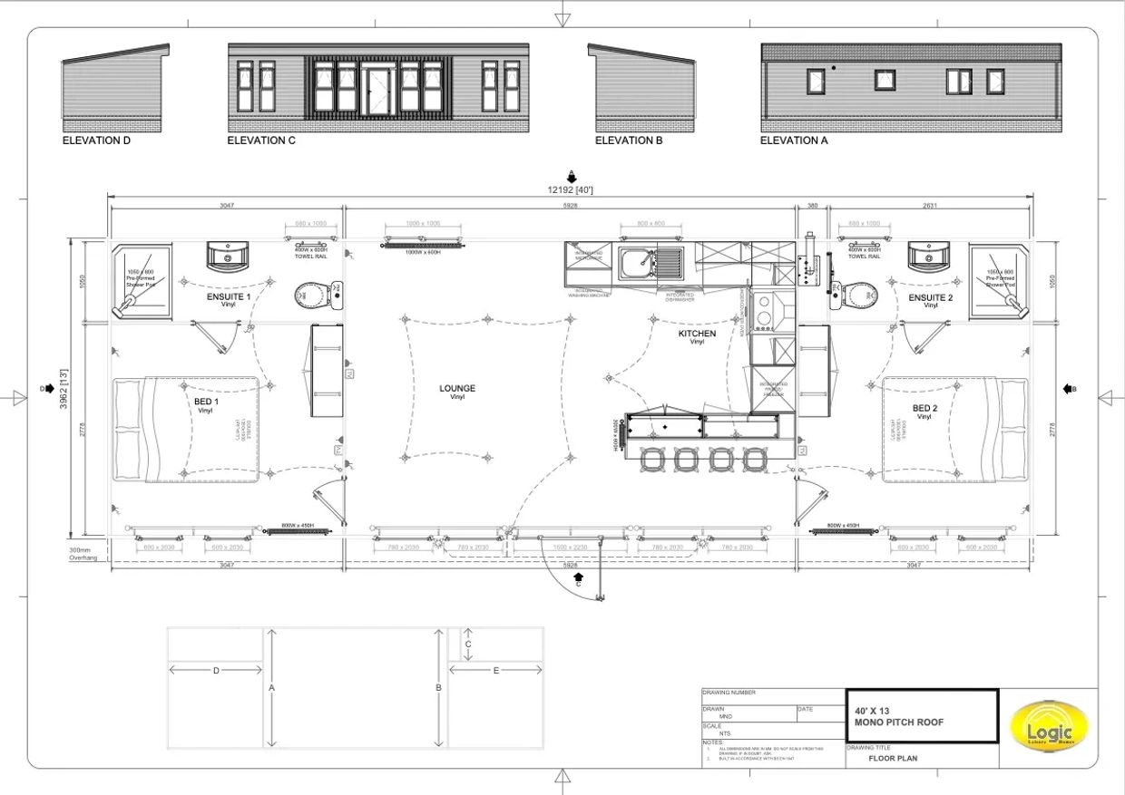
This floor plan outlines a Logic 40′×13′ unit featuring a Mono Pitch Roof. Unlike typical residential layouts, this design places the living quarters at the center, flanked by two nearly identical bedroom suites at either end.
The middle section of the unit serves as the primary social space, featuring vinyl flooring throughout:
The layout is symmetrical, providing privacy by separating the two bedrooms:

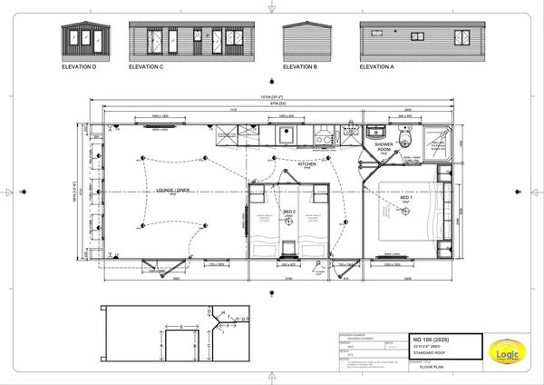
This floor plan details the NO 106 (2026) model, a 2-bedroom unit measuring 32′×12′6" with a Standard Roof. The interior features vinyl flooring throughout the living areas, bedrooms, and bathroom.
The left side of the unit is an open-concept social space:
The right side of the unit houses the private living quarters:

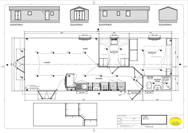
This floor plan details a Logic 36′×13′ leisure home. The layout is designed with an open-concept living area on one side and private quarters on the other.
The left portion of the unit is dedicated to a spacious, integrated living zone:
The right side of the unit contains the private rooms, accessible via a small hallway:
Copyright © 2026 Logic Leisure Homes Limited - All Rights Reserved.